Back to Listings
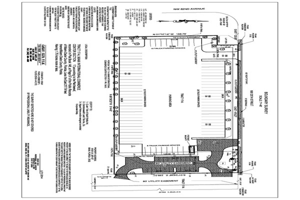
8100 NW 25 ST
Doral , Florida 33122
- Listing Type:
- For Sale
- Listing Price:
- $11,800,000.00
- Property Type:
- Land
- Property Subtype:
- Industrial
- Year Built:
- Listing Status:
- Active
- Land Area:
- 2.78 Acres
Description:
One of the last remaining vacant land sites in the City of Doral. Permitted Uses Include: Hotel/Motel, Professional/Medical Office, Banks, Restaurants, Retail, Educational Facilities, Warehouses, Auto Dealership/Truck Sales. Lot is currently in use as a parking lot with a month-to-month rent of $16,400.
Located on a major East/West artery of NW 25th ST
Average of 36,000 vehicles per day
Easy Access to SR 826
One block from Palmetto Expressway
One block from New Jackson West Medical Center
Presented by:
Listed by:
Miami Doral
Mortgage Calculator
INPUTS
